Point Pleasant, SW18
Riverside Living
Property Type
Flat
Bedrooms
2
Bathrooms
2
Size
804 sq ft / 75 sq m
Tenure
Leasehold
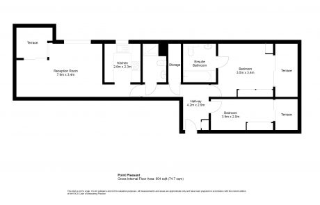
Floor plans
Guide Price
£575,000
Highlights
- RARE apartment with THREE balconies (one with direct river views)
- Large partially open plan reception/kitchen
- 2 double bedrooms with plenty of storage
- Ensuite plus second shower room
- Large hallway with utility cupboard
- Riverside location
- Secure parking space
- Long lease 124 years
- Great access to plenty of amenities and transport links
On the map
Description
Summary
This wonderful 4th floor apartment (with lift) is rare in that it has 3 balconies – including uninterrupted river views.
Comprising:
– Large open hallway with large utility cupboard and further storage
– Master bedroom with built-in wardrobes and private balcony
– Ensuite bathroom with bath and shower over
– Second double bedroom with built-in wardrobes and further balcony
– Second shower room
– Large partially open-plan reception, diner and kitchen onto large corner balcony (river views!)
– Secure car parking space
This apartment is right by Wandsworth Park, just a 10min walk from Southside shopping centre, and only a 15min walk from East Putney tube – though plenty of buses are even closer, and Putney overground station is also within 20mins (plus Putney High Street with its plentiful shops, restaurants and bars).
This is the very best of tranquil riverside living whilst still being conveniently close to amenities and within easy commuting to central London.
The A3 is also within easy reach for access South and West, and a 45min drive to Gatwick airport.
This comes with no onward chain, and is in a well maintained and managed building.
Service charges circa £395pcm
Lease 124 years
Council Tax
Band: F













